计量实验室规划图免费下载-伊之密恒温恒湿实验室案例
日期:17-06-03 / 作者: sg胜游亚洲小科 / 出处:sg胜游亚洲
项目名称:精密加工厂恒温恒湿实验室
应用行业:精密机械/精密加工/精密模具制造
恒温恒湿实验室客户介绍
广东伊之密精密机械股份有限公司,是专注于“模压成型”专用机械设备的设计、研发、生产、销售及服务的高新技术企业,以高精度注射成型机、高性能铝镁合金压铸机、高品质橡胶机为主导产品。2015年1月23日伊之密成功登陆深交所A股市场(股票代码:300415)。
恒温恒湿项目介绍
广东伊之密精密机械股份有限公司,是专注于“模压成型”专用机械设备的设计、研发、生产、销售及服务的高新技术企业,以高精度注射成型机、高性能铝镁合金压铸机、高品质橡胶机为主导产品。对其生产产品要求极其严格,其公司恒温恒湿车间,产品计量检测室,三座标实验室(都是恒温恒湿项目)都由我司负责建设施工。
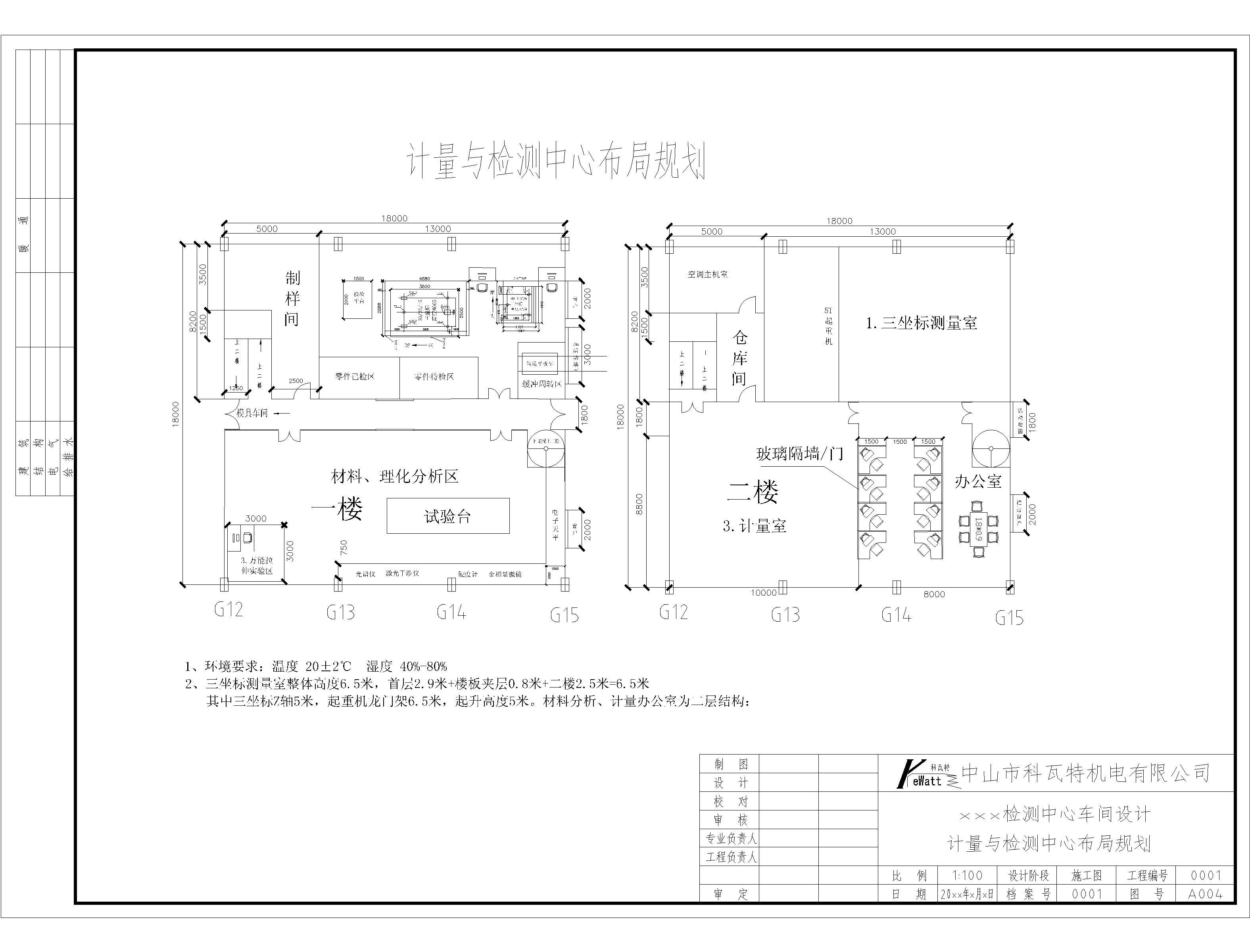
计量实验室规划图

如上图,本项目分为两次楼,一楼主要是材料,理化分析区,制样间,二楼主要是计量室,三坐标测量室,仓库。
本计量实验室规划图是胜游亚洲·(中国区)官方网站
自主设计,本着方便用户的心态专门提供了高清计量实验室规划图供大家下载,下载地址为:计量实验室规划图免费下载
计量实验室环境要求:
温度:控制在20℃,精度±2℃,
湿度:40-80%RH,高精度要求:正负2%。
以下为本案例实景图供大家参考

仅通过简单查看我们的一张计量实验室规划图,我们是可以了解到比较多的信息的,如有需要建议下载我们的高清计量实验室规划图回去仔细分析,如果对实验室规划图有疑问可直接联系我们sg胜游亚洲。虽然说是计量实验室规划图,但实际上一般情况实验室规划图不可能仅仅就只有计量实验室的规划,所谓实验室规划那就是要根据客户实际的情况和实际需求分析出来,然后在由我们sg胜游亚洲内部多次研讨设计而出来的,重点在于重要内容的布局,能让客户看到实验室规划图就能清晰的知道我们是否已经真实的明白他们的需求了,有了实验室规划图确认了需求才会进一步的把工作继续做详细从而生成更多的设计图纸等等。
热门文章 Hot
- 高温高湿实验室设计(中山天贸电池)07-20
- 机顶盒高温实验室规划07-20
- 油墨实验室通风工程规划(中山洋紫荆)07-19
- 东莞焓差实验室规划06-30
- 佛山小型电风扇风量实验室规划设计建设案例06-21
- 佛山市精细化工工程研发中心植物组织培育案例06-15
- 计量实验室规划图免费下载-伊之密恒温恒湿实验室案例06-03
- 机顶盒的研究实验室规划图 免费放送[端午福利]05-30
- 深圳医疗器械质量检测实验室案例12-28
相关内容 Related
- 高温高湿实验室设计(中山天贸电池)07-20
- 机顶盒高温实验室规划07-20
- 油墨实验室通风工程规划(中山洋紫荆)07-19
- 东莞焓差实验室规划06-30
- 佛山小型电风扇风量实验室规划设计建设案例06-21
- 佛山市精细化工工程研发中心植物组织培育案例06-15
- 计量实验室规划图免费下载-伊之密恒温恒湿实验室案例06-03
- 机顶盒的研究实验室规划图 免费放送[端午福利]05-30
- 深圳医疗器械质量检测实验室案例12-28
